發布時間:2023-10-07閱讀:


CHAPTER 1



CHAPTER 2













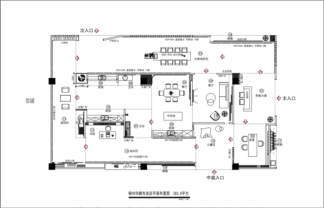
項目名稱|柳州旗艦店
項目位置|廣西 · 柳州
項目面積|283.8m2
設計公司|華鵬陶瓷設計部
參與設計|陳泳因、張業偉

柳州旗艦店平面圖
柳州旗艦店地址:柳北區海迅路新紅衛17棟博皇建材館一樓中庭
8月18日是鷹牌集團成立49周年的紀念日,值此慶典之日,華鵬陶瓷于淄博地區舉行“同心同行,共贏未來”為主題的49周年8·18廠慶活動。華鵬陶瓷淄博運營中心總負責人陳國榮、華鵬陶瓷華...
從前的世界慢 車馬郵件也慢 一生只夠愛一個人 如今匆忙的腳步 川息的車流 ...... 讓生活成了過活 華鵬陶瓷 用貼進生活的藝術主張 帶你一起慢下來 走進生活之美 身處繁華不免喧...
脫去夸張復雜的華麗和明亮活潑的稚氣,來自“灰度”的高級感,逐漸走進現代人們的視野,干練、穩重、簡約而不單調,透露著精英的氣質與經典的魅力。