發布時間:2023-06-13閱讀:

揭西,位于廣東省東部
資源豐富,交通便利
作為我國著名的革命老區和僑鄉
隨著經濟的不斷發展,揭西旅游業發展很快
打出“韻味獨特潮客風,綠色生態揭西游”的品牌
現已成為粵東地區的旅游勝地之一




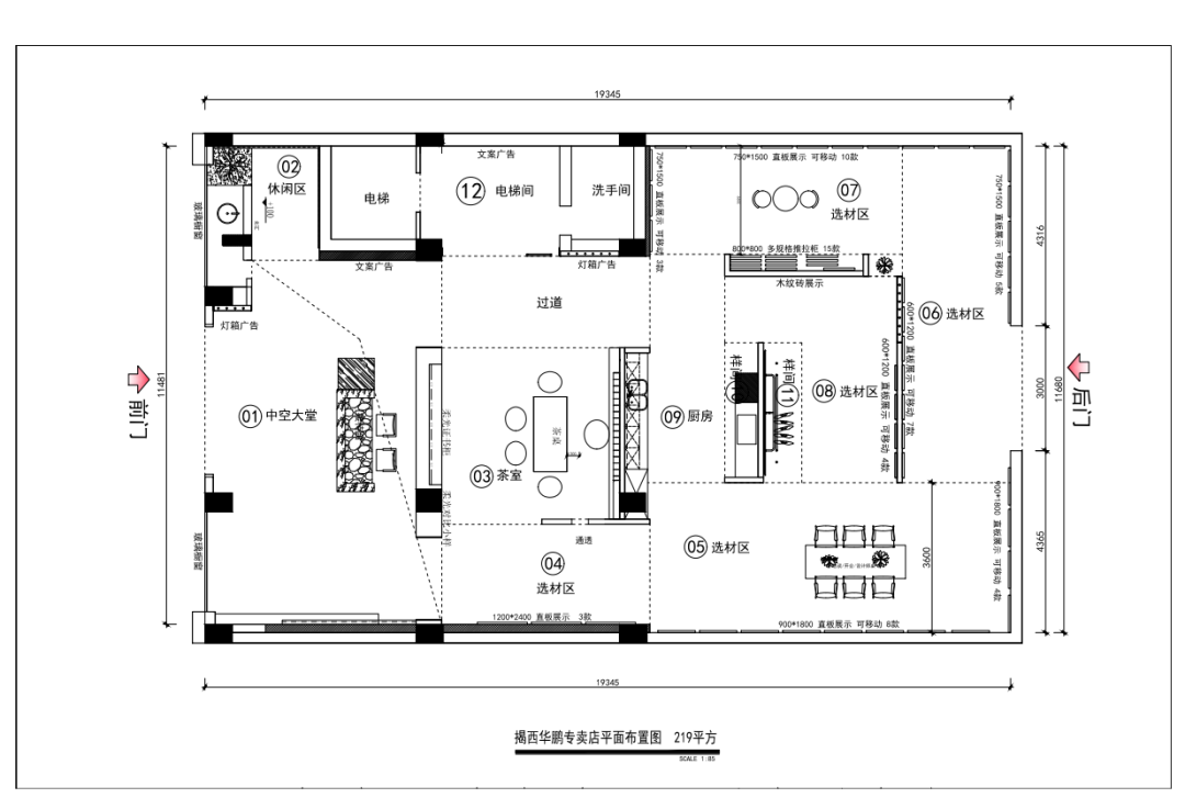
揭西旗艦店總面積219㎡,設計師將它打造集空間、展示、選材為主的柔光體驗館,整體設計創新而又立體,整個空間年輕時尚,前臺區域背景墻作為公司的品牌IP輸出,加強品牌形象的視覺效果,突出了品牌調性。


茶室作為重要的洽談區域,灰色背景墻大氣優雅,去裝飾重質感,構筑一個開放、詩意、令人精神愉悅的空間,拉近與消費者之間的距離感。
作為重要的選材區域,設計師塑造空間的流暢度與通透感,將空間以合理利用,人流導向順暢、引導性強,無死角;區域劃分明顯,功能齊全;選材與展示為一體,方便參觀和選擇。





應用華鵬陶瓷硅藻泥科技墻板,打造出一個極具童趣的空間,該墻板采用“環保科技板材+環保PUR熱熔膠+環保EBPP飾面材料”組合而成,產品達到E1級甲醛釋放量標準,遠低于國家標準規定的空間VOC及板材甲醛含量,無需放置,實現即裝即住的環保要求,為消費者給兒童打造一個健康舒適的空間提供范本。
項目名稱|揭西旗艦店
項目位置|廣東 揭西
項目面積|219m2
設計公司|華鵬陶瓷設計部
參與設計|陳泳因、張業偉

揭西旗艦店平面圖
揭西旗艦店地址:
廣東省揭陽市揭西縣錢坑鎮錢東奇旭建材
五一小長假原本是難得的幾天休息日, 但對于韶關翁源的消費者來說,5月1日這一天不能讓自己停下來,因為不能錯過華鵬陶瓷的鉅惠! 這不,剛踏進五月的第一天,位于韶關市翁源縣
Meeting Soft Light遇見·柔光第8期-“你必須只有內心豐富,才能擺脫這些生活表面的相似。”——《致女兒書》王朔居所如人,內心秉持的生活哲學,書寫著獨屬于自己的幸福答...
華鵬陶瓷石家莊店以豐富產品線以及優質的售前、售中、售后服務,贏得了石家莊消費者青睞 。在華鵬陶瓷石家莊店的HOPO精英2013年的辛勤付出之下,華鵬陶瓷被石家莊業之峰裝飾公司