發布時間:2023-02-13閱讀:
陶瓷一線品牌華鵬陶瓷經過29年的發展,一直專注于29°柔光的生產與研發,以卓越的產品質量贏得了廣大消費者的認可與青睞。經過多年的市場檢驗,華鵬陶瓷在全國開拓了一百多家專賣店,并穩步擴張。2023年伊始,設計升級已在緊鑼密鼓進行中……
華鵬陶瓷為打造更多符合現代審美需求的優質店面,對設計標準進行持續升級。輸出700㎡、500㎡、300㎡、150㎡等多個設計模塊,針對不同區域、不同客戶量身定制,快速幫扶客戶店面落地,滿足更多客戶群體的需求。
統一的店面形象是店面標準化管理的基本要素,也是品牌建設的核心,更是服務質量高層次的體現。華鵬陶瓷統一設計標準,以設計的力量賦能終端銷售,提升品牌價值,塑造更高的品牌美譽度。
這期,給大家帶來150㎡的模塊店的全新展示,一個“精而美”的空間等你揭開。
外立面
外立面以高端建材商場店面設計為參考,整個外立面突出品牌logo,強化產品IP(柔光磚,選華鵬),采用舒適的光度、簡練的線條、以簡約而又大氣的設計手法,充分展現了品牌的調性及強大氣場。




整個空間布局以開放、流動為基調,應用圓形曲弧元素,醞釀出柔和的空間氣質。極具沖擊力的大規格背景墻與藝術造景相呼應,以材質為界面,引導視覺向里游走,進而創造縱向的“拉伸感”,強調空間的沉浸氛圍。


本模塊利用有限的空間用來展示品牌實力,是消費者全面了解華鵬陶瓷產品與文化的專屬場地,在設計上采用了灰色主色調,運用利落的線條,營造出品牌的厚重感。







設計師從美學的角度出發,憑借著對美的追求和不斷得創新意識,將選材區化為藝術長廊,將規格進行劃分,整個空間舒服整潔,為人們帶來體驗式參觀之旅。
選材區強調視覺的干凈有序,每一款產品都如藝術品般陳列于墻面,呈現對產品的聚焦導向,同時并不缺少豐富的視覺氛圍,增加了消費者的購磚體驗。
2023年,陶瓷十大品牌華鵬陶瓷將在設計板塊持續發力,提升空間體驗感,為廣大消費者帶來更多驚喜。
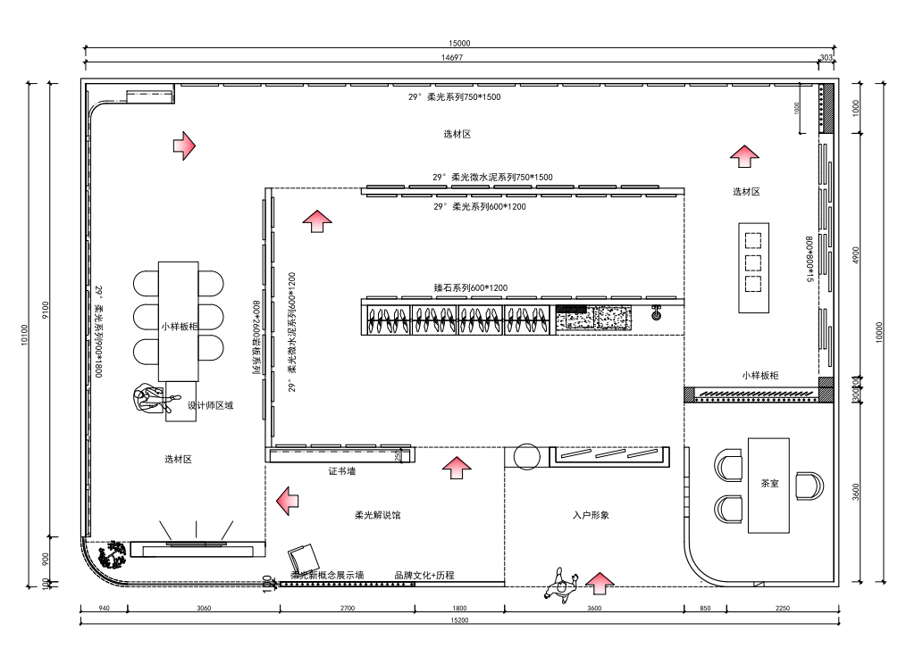
平面設計圖
鳥瞰圖
多年來,華鵬陶瓷堅持以設計驅動創新力,以設計為紐帶鏈接設計資源。去年亦是如此,與廣州設計周再度聯手,發起2022金住獎—中國居住空間設計年度評選活動,挖掘更多有溫度的空間設計,將“...
柳州,你不能只寫柳州。柳州,有風味獨特的螺螄粉;馬鞍山的至高點,可以把柳州的浪漫盡收眼底;柳江、龍潭公園、窯埠古鎮……這些美麗的山水畫也是柳州的另一張名片。一碗螺螄粉講不完一座城;...
Meeting Soft Light遇見·柔光第16期-“感知生活,回歸本真”Perceptual life,Back to basics.——無殼01什么是中古風?中古風簡稱MC...