發布時間:2022-03-17閱讀:
2021年,陶瓷一線品牌華鵬陶瓷正式進入泛家居市場,從單一銷售瓷磚到墻地專家,新增硅藻泥科技板、HPL實晶地板等新型健康環保材料,最大限度提高客單值、利潤值,實現終端店面展示平效最大化。
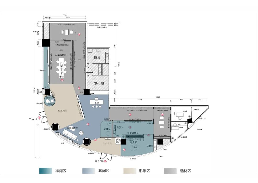
隨著這一布局,終端也迎來了新的店態,貴州興義旗艦店突破傳統,融入了墻板一體化設計。在功能分布上更加的鮮明獨立,空間布局合理有序、自然流暢,讓消費者能快速了解并體驗產品。

興義作為黔西南布依族苗族自治州首府,也是貴州省四大主要的中心城市之一 。近年來交通基礎設施建設實現跨越發展,創造和刷新了“興義速度”,上榜全國縣域經濟綜合競爭力100強。它還是世界公認的黃金氣候生態帶,被評為“中國最美的地方”。
近日,興義華鵬柔光體驗館正式開業落成!通過墻地一體化打造全新的體驗店,讓客戶在選購瓷磚的同時,還能體驗家居空間,直觀看到產品使用的場景,還能深深體會到硅藻泥科技墻板的對家居的多元化運用,將舒適健康生活的概念深入傳導。


興義旗艦店總面積307m2,設計師將它打造為柔光生活館,呈現出精致舒適的美學品質,可見前衛藝術的精神氣質,遞進式的布局與分區、功能與美學的完美平衡、肌理的自然詮釋、光影的悱惻悠揚,于淺吟低唱中直抵美的內核。
設計師為了整個空間打造了多種場景,整體空間由不同的單色調組成并形成豐富的層次效果,其中大廳的螺旋設計與家居空間作為主要的設計亮點,奠定空間基調。


開門見景,旗艦店大門采用弧形設計,用色彩碰撞的方式吸引眼球。直入眼簾的是品牌展示中心,大廳作為中心地帶,也是接待客人最重要的地方,大廳采用29°柔光900*1800寶格麗冰河白連紋產品,高級感十足。





空間體驗區
整體家居空間大道至簡,設計師認為這是現代設計最美好的一面,客廳使用瓷磚與硅藻泥墻板結合,創造出新的空間形式,一種溫潤的質地油然而生,搭配出非凡的空間格調。


形象設計
大廳左側的螺旋藝術設計非常具有儀式感,像一條靈動的紐帶,表達了陶瓷十大品牌華鵬陶瓷29°柔光的柔性之美,驅動著空間邏輯成立,設計師大膽的用色把整個樓梯空間變成一件亦景悅心的大型藝術品,標新立異卻又恰如其分的為品牌加分。


兒童房
兒童房的設計以童趣的張揚色彩及環保為落筆,HPL實晶地板與硅藻泥科技墻板的結合,釋放了空間的視覺感,尺度舒適,對材料進行重新分割組合,觸目所及之處皆趣味,并強化空間品質。


洽談區-茶室
洽談區陣列感的模數發光燈膜既承載著照明功能也具有指引性。在接待區打造了茶室,



選材區
時尚、舒適、精致的生活情調,從情境到意境,再從意境到心境,將美的意象從容展開,美的本質在這里迸發。
項目名稱|華鵬貴州·興義旗艦店
項目地點|貴州 興義
項目面積|307m2
完工時間|2022.2
設計單位|華鵬陶瓷設計部
總設計師|陳泳因

平面圖
興義華鵬旗艦店
地址:貴州省興義市桔山區印象興義一號樓
貴州省部分空白區域招商熱線:陳經理-13690297168
2015新年開工伊始,HOPO華鵬陶瓷再傳捷報,29度柔光石材2.0產品—藍金沙在2015中國陶瓷新品匯評選活動中榮獲2015年度最具美學價值陶瓷產品。
7月1日-7月3日,華鵬陶瓷2020年中總結會召開。華鵬陶瓷總經理姚松榕、副總經理閆蕾,及全體員工參加了本次總結會。
對于國內柔光磚出現的最早時期,業內的意見并不統一。有人說羊皮磚是最早的柔光磚但也有較為一致的共識,即從2014年開始,柔光磚漸成高頻詞,在多數行業人士的認知中,柔光磚已