發布時間:2021-12-01閱讀:
2021金
城市十大作品分享

「金住獎-中國居住空間設計年度評選」,由亞洲首屈一指的設計產業資源價值平臺——廣州設計周于2019年首度發起,首個以業主宜居指數為評判標準的中國居住空間設計師大型年度盤點,秉承“房子是用來住的,不只是用來看的”的理念,倡導“做有溫度的居住空間設計”。
正如華鵬陶瓷29°柔光磚一樣,一直堅持做有愛有溫度的設計,精心打磨,調試出最適宜的光澤度,呵護家人健康,致力創造自然舒適的居住空間;宜居、舒適、適宜,是華鵬一直在努力探索的生活邊界,也尋找更多設計師與陶瓷一線品牌華鵬陶瓷一起探索29°柔光生活。
自3月廈門啟動

日前,經過評審委員會的嚴格審核和篩選,「金住獎-2021中國(城市)十大居住空間設計師」獲選名單已陸續出爐。
其中,多名優秀設計師的設計作品,選用陶瓷十大品牌華鵬陶瓷產品,以華鵬產品為媒介闡釋自己的設計理念,通過華鵬29°柔光產品特性傳遞自己的設計想法。
這一期,我們將一起來分享漯河優秀設計師李輝山的設計作品,通過簡約的設計,質感的空間,激發對生活本身的真實感受和對美好的無限向往,讓身處其中的人都能感受到純粹空間所傳遞的精神與力量。
洞見本質,超越時間的純粹質感

摒棄過多的裝飾回歸自然,尋找自然原始的味道,用最淳樸的原木色為主打色。本案的設計師以整體簡約自然風為基礎,采用大量的原木元素作為主要的基調,并貫穿不同生活場景,構造充滿簡潔質樸的空間,非常契合用戶的審美。

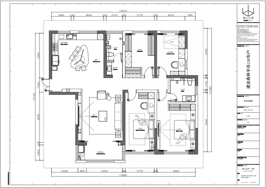
平面戶型圖
項目名稱 |:建業森林半島
項目地址 |:漯河市
設計風格 |:現代風格
項目面積:130平方米
設計機構 | :漯河市源匯區圖瑞設計事務所
軟裝設計 | :圖瑞設計事務所
完工攝影 | :陳浩


客廳

客廳空間的設計,通過塊面和線條的塑造使其更具包容性,凸顯了空間的層次感與立體感。
背景使用灰色大理石進行拼接,視覺上擴大了整體空間的開間距離,也更加體現了整體空間設計上的精致感,沙發與背景墻形成一種藝術的聯動,豐盈了客廳的時間感,將質樸的寧靜與時間消逝的美留存于空間,通過設計營造舒適安心的自然氛圍。


廚衛空間
廚房、餐廳和客廳為整合的開放式空間,形成一種自由的烹飪與用餐區,淡雅的空間肌理,灰色大理石餐桌成為亮點,簡潔而平靜,讓心靈有了更大的釋放,呈現出純粹自然的氣質,營造洗盡鉛華回歸本質的設計境界。


衛生間采用高級灰大理石石材打造,自然而簡約,通過唯美的規劃分割,完美實現功能與美感的結合,露出高級優雅的質感。



房間
主臥延續了整體空間的色調,設計師運用沉靜簡美,追求極致的細節表現,不僅展現其美學精神,增添了整個空間的“溫度”,也拉近了空間與人的距離。


在次臥的設計上,設計師對線條進行分割,利用幾何圖案作為背景,與衣柜形成一體,張弛有度,柔和的淺色調更顯優雅獨特,營造和諧的氛圍。
設計是一種回歸
回歸本真
通過簡化空間洞見本質
尋找一種隱匿的靜謐與和諧
譜寫“純粹質感”的詩意空間
再次恭喜李輝山獲選金
2021中國(城市)十大居住空間設計師的杰出代表
12月9-12日
來金
臻石·系列「600X1200mm」-萃取天然原石精華設計師從中獲取設計靈感,簡化肌理強調自然質感,舒適且有溫度1、印尼桫欏雙產品型號:Y1MA900SH產品規格:6001200mm...
臻石系列750x1500mm | 有溫度的家,最撫人心750x1500臻石系列,方寸之間盡顯不凡。低飽和色系,溫柔、靜謐、瞬間就能治愈人的心靈,整個空間也變得更加具有高級感。 萃...