發布時間:2020-06-24閱讀:
縱使千年流轉,如今的西安,舊時的長安,依舊是中國人心中一處永恒的坐標。

西安,十三朝古都,中國版圖幾何中心,一帶一路的起點與樞紐,也是大西部戰略的支點。時間與空間上的厚重感,賦予西安一個深刻的標簽——古老。然而今天的西安,作為網紅城市,卻愈發鮮活。

在這里,歷史與時尚接軌,隨處都是悠久的古文化與新潮事物的碰撞。

在華鵬的終端布局坐標里,西安也是不可或缺的戰略支撐點。華鵬陶瓷立足西安,輻射大西北,576方旗艦店,為厚重的西安,添染一抹柔光。
///
項目概況

項目名稱:華鵬西安柔光精英生活館項目地址:西安市北三環大明宮建材市場陶瓷交易A區項目面積:576㎡設計指導:胡苑茹施工指導:胡苑茹/李堅華


項目負責人:胡苑茹/李堅華
///
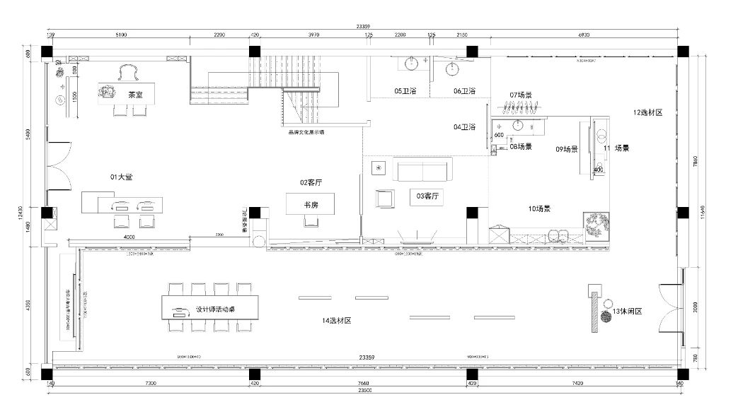
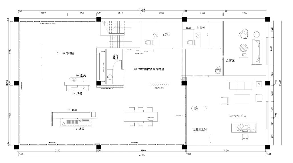
平面布局圖
店面整體設計風格以現代簡約為主,在追求時尚的同時,更多注重功能需求,并兼顧消費者的購買體驗,運用開放式結構,每個空間通過結構或視線來連接互動。

/一樓平面布局圖/

/二樓平面布局圖/
///
空間展示
在整體設計中融入華鵬品牌的柔性文化和符號,通過“造型、觸感、光感”營造柔光之美;

外立面設計趨于樸實、簡單、穩重,去除繁雜的元素,遵從“減”與“簡”的態度。

落地櫥窗,是一個個時尚精致的藝術空間,顏色鮮艷的弧形元素和華鵬產品,讓整個店面充滿活力。
大堂形象區
延續華鵬總部展廳設計理念,采用柔性的(曲線、圓弧)作為空間造型元素,主色調頗為暖意;一層展示以華鵬主推產品選材為主,結合實景模擬空間展示,打造針對零售渠道的精品門店;



樓梯是整個空間布局的架構之一,也是展示空間藝術魅力的重要因素,是連接上下層的過渡地帶,也是室內空間精美的造型藝術。
場景空間展示
/茶室/

/書房/

/客廳/




/衛浴空間/


/廚房空間/

無需過多的花哨,越是簡單的空間,卻能傳達出最有力的氣場。通過體塊與光影、比例與形體、元素與質感,從而塑造不同空間該有的精神氣質。
選材區





選材區直觀陣列式且有獨特韻律的展示布局,方便消費者選材和體驗品牌全方位產研實力。
二層展示以華鵬工程產品為主,天花處理采用工裝展示的設計手法,結合工裝休閑場景展示,小樣品展示墻,打造針對工程渠道的全品類選材區。



/工程選材區/

/小樣展示墻/


坐落于這座歷史文化名城的全新旗艦店,融合華鵬柔性文化,將展示華鵬特色的柔光產品和豐富的產品品類,煥新西安精英生活方式,同時也代表華鵬進軍中國西北地區的決心和堅定信心,為華鵬陶瓷在中國西北區的新崛起,打下了堅實的基礎。
現代人對于家居生活的需求越來越高,既想要詩意地活著,還要有健康舒適的居家品質。這期29柔光課堂,推薦一款溫暖治愈系的家居風格。家的舒適性,除了整體布局要得當,細節處的用心更不能忽視...
驚喜是意料之外,驚喜是推陳出新,2013年-2023年,10年,深耕柔光領域,開創柔光,建立標準,獲得國家專利發明證書。柔光1.0-7.0產品更新,實現視覺、觸覺全面升級,再一次以...
美麗的長江岸,坐落著一個歷史凝重的城市——鄂州。9月30日,伴隨著華鵬陶瓷鄂州精英生活館的盛大開業,也給鄂州市民帶來了一個良好的居家生活體驗。