時間為經,空間為緯。
人類所有的活動都建立在這張巨大的時空交匯網上。
關于時間,那似乎是一股流經身體的細流,
我們對它的感知往往只限于它流逝的速度與變遷的結果。
但空間就不同了,那是一種需要真實體驗的東西,可以恰當地稱之為體積或容積。
居住空間,一個時間在這里疊印最多的地方。
它的構造與布局直接影響了我們的日常起居,通抵心靈。
2019年,秉承“房子是用來住的,不只是用來看的”的理念,倡導“做有溫度的居住空間設計”的「金住獎-2019中國居住空間設計年度評選」,一經推出便得到了中國居住空間設計及相關業界的廣泛認同和高度贊許,自5月正式發布以來,在全國數十個城市掀起來一場場有溫度的居住空間設計活動熱潮,僅歷經4個多月,即吸引了全國超過120座城市的14000多名居住空間設計師的踴躍參評。
日前,經過評審委員會的嚴格審核和篩選,金住獎-2019中國(城市)十大居住空間設計師的獲選名單已陸續出爐。
其中,惠州地區陳克、林佳銳、周友德3位優秀設計師的設計作品,選用華鵬陶瓷產品,將華鵬產品作為媒介闡釋自己的設計概念,通過華鵬的產品特性傳遞自己的設計想法。
華鵬陶瓷一直致力于創造自然舒適的居住空間,就像華鵬的29°柔光磚一樣,總是盡力幫你調試出最適宜的居住環境,宜居、舒適、適宜,是華鵬一直在努力探索的生活邊界。
以空間哲學容納原初生活,做有溫度的居住空間設計。現在就一起來欣賞一下,三位入選設計師為我們打造的居住空間吧!
家是安靜的容器,居者享受這份安寧
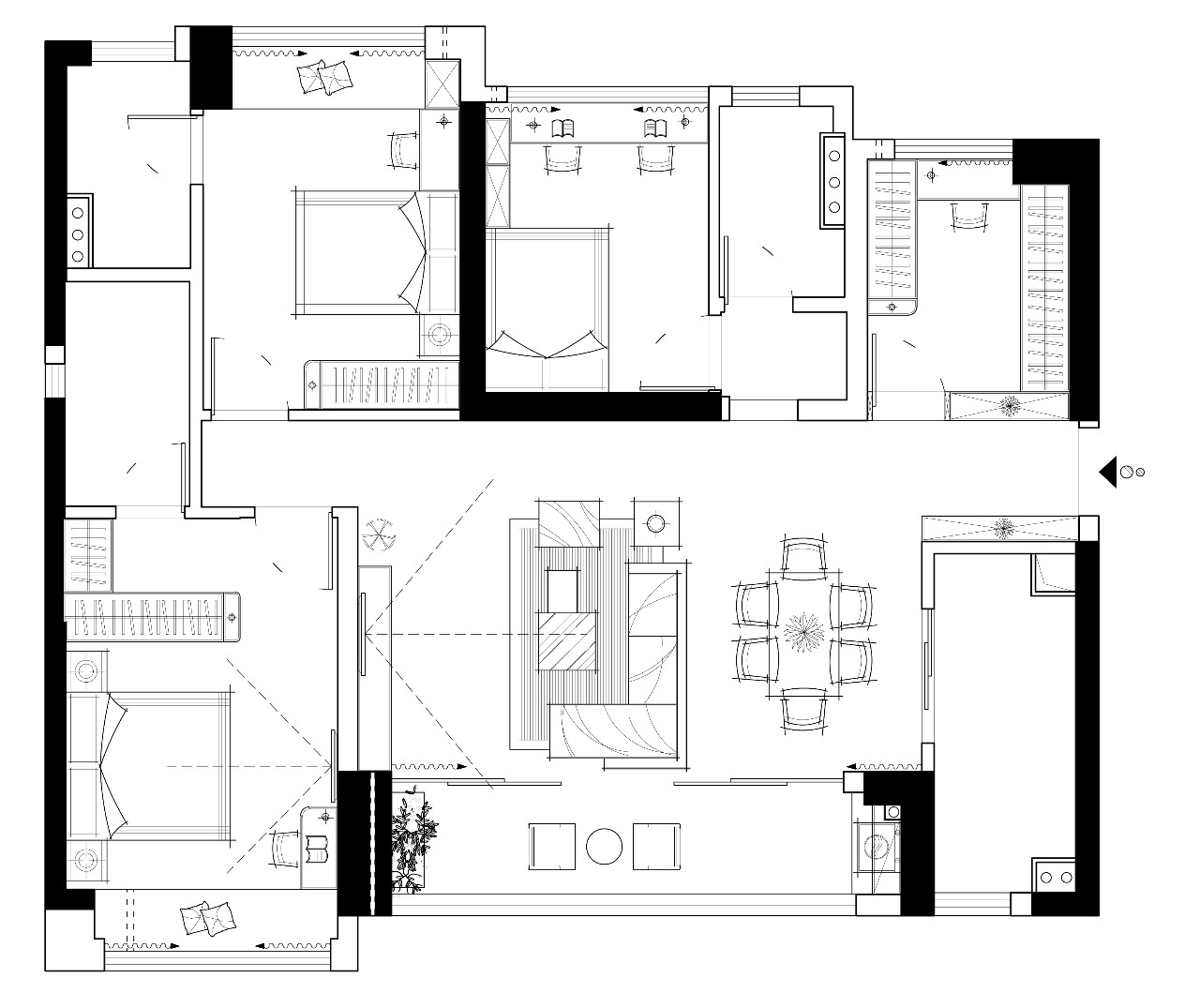
項目名稱:綠地花都
項目風格:現代風格
項目面積:150㎡
平面圖

設計希望家是一個安靜的容器,居者能享受這份安寧,面對都市飛快的生活節奏,有一段真正屬于家人的幸福時光。
客廳
高級灰是時尚界永垂不朽的神話,極致、經典、神秘、霸氣成熟穩重而又不失驚艷韻味。
餐廳
將藝術元素融入現代風格,采用高級黑的色彩,簡潔的墻面線條做輪廓勾勒。
次臥
搭配淡雅的色系,利用空間的色彩、紋理、家具、配飾、光線等表達空間的情緒,營造冷靜淡雅的家居生活氛圍。
書房
玄關處大面積原始木質紋理的應用,以自然原始為元素,通過現代設計,回歸材料自然本色,表現了自然之美。
臥
搭配唯美的燈光,增加了空間通透感,在以高級灰環境為肌底的前提下,用自然元素勾勒出了溫暖如春的住宅空間。
項目設計師
陳克
清華美院總監高研班
佛山五大杰出家裝設計師
全國住宅裝飾裝修行業優秀設計師
佛山家居行業風云人物之“8大家居設計師”之一
空間不止是容納生活的載體,更是盛放一家人的志趣
項目名稱:陽光一號樣板房
項目風格:現代簡約
項目面積:90㎡
簡潔和實用是現代簡約風格的基本特點,加上傳統的中式風格讓人感覺舒適和恬靜,適度的裝飾使家居不缺乏時代氣息,在緊跟時尚步伐的同時,使人在空間得到精神的放松,也滿足的現代人“混搭”的樂趣。
以簡潔的表現形式來滿足人們對空間環境那種感性的、本能的和理性的需求,這是當今國際社會流行的設計風格。
人們在日趨繁忙的生活中,渴望得到一種能徹底放松、以簡潔和純凈來調節轉換精神的空間。
這是人們在互補意識支配下,所產生的擺脫繁瑣、復雜、追求簡單和自然的心理。
項目設計師

林佳銳
香港(國際)皇家設計有限公司 設計師
小空間也能容納生活的自在
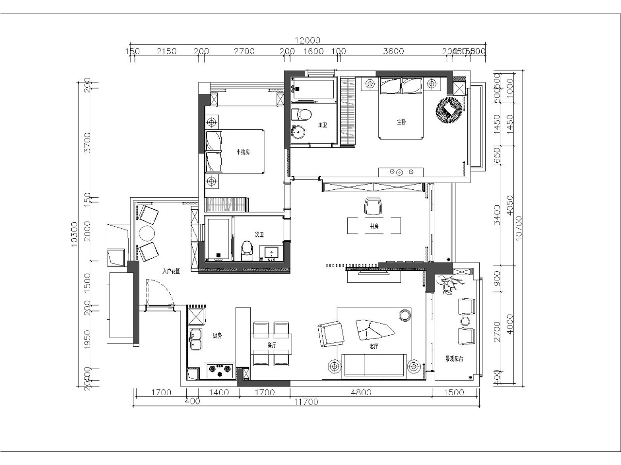
項目名稱:龍城一品樣板房
項目風格:現代風格
項目面積:108㎡
平面圖

根據面積大小,設計考慮把此套面向的客戶群體設定為85后剛需。
此年齡段的客戶群體均是事業小有成就,上有老下有小,順應時代潮流,思維方式及對生活要求的品質正隨著國家的強大正一步步接近國際化。
設計時為了做出開闊視野,把廚房及書房做了開放式的處理,在功能空間與功能空間分界的位置用反射強烈的玫瑰金材質及吧臺柜分隔空間,使其能夠猶抱琵琶半遮面,介于朦朧半朦朧的感覺。
硬裝主色調搭用了中性的棕褐色,溫暖且不失沉穩的色調,再通過軟裝用一些點冷色調軟式去點綴,讓其空間有所對比。
項目設計師

周友德
香港(國際)皇家設計有限公司 主創設計師
居住空間設計要在確保使用功能的前提下,更多的融入居住者的個人色彩。從大的風格到小的配飾,從水、電的管線鋪設到窗簾布藝的軟性裝飾,可謂“麻雀雖小,五臟俱全”。這就要求居住空間設計師素質要全面,不僅專業要強,還要有一定的生活經驗,懂得品味生活。
恭賀獲選金住獎-2019中國(城市)十大居住空間設計師的杰出代表
即日起,組委會將陸續分批次公布其他城市“金住獎2019城市十大”的獲選名單。同時,“城市十大”獲選設計師將在七大“暖男”設計大神評選的嚴格篩選下,分別竟逐“金住獎-2019中國百杰居住空間設計師”與“金住獎-2019中國十大居住空間設計師”,并將參與于12月5-8日在廣州設計周舉辦的分享論壇、頒獎典禮等系列活動,期待更多的榮譽綻放!
時間安排
11月1-15日
金住獎-2019中國(城市)十大居住空間設計師
獲選名單公布
11月21日
金住獎-2019中國百杰居住空間設計師
獲選名單公布
12月5-8日
年度盛典 | 現場揭曉
“金住獎-2019中國十大居住空間設計師”